中川原中古住宅
能代市能代町字中川原21番8
価格380万円
物件登録日:2025年9月28日
販売
中古住宅
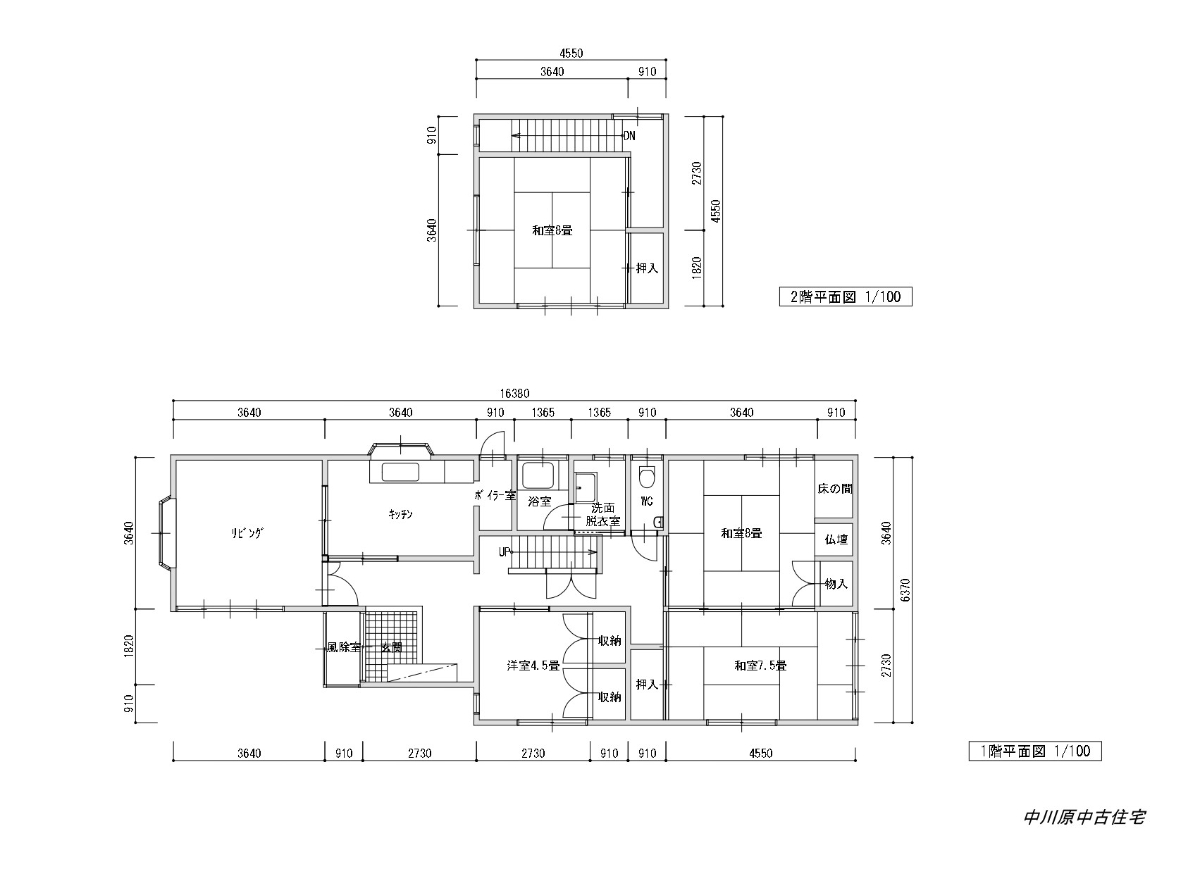
5DK
能代市能代町字中川原21番8 大きい地図で見る
物件詳細
- 物件名
- 中川原中古住宅
- 所在地
- 能代市能代町字中川原21番8
- 価格
- 380 万円
- 地目
- 宅地
- 建ぺい率
- 60 %
- 容積率
- 200 %
- 私道負担
- 無し
- 間取り
- 5DK
- 土地面積
- 373.89㎡
- 建物面積
- 111.79㎡
- 構造
- 木造亜鉛メッキ鋼板葺き
- 階建
- 2階建て
- 建築年
- 昭和63年築
- 引き渡し時期
- 相談
- 取引態様
- 仲介
- 現況
- 販売中
- 駐車場
- 無し
- 交通
- JR五能線 能代駅まで徒歩約20分
- 学区
- 渟城南小学校・能代第二中学校
- 用途地域
- 第二種住居地域
- 接道
- 一方 (南西 幅:約5~6m 接面:約8.3m)
- 設備
- 上水道、都市ガス、灯油タンク、灯油ボイラー、汲取りトイレ
- 備考
見学から、住まいづくりのご相談などお気軽にお問い合わせください。
◎お電話でのお問い合わせはこちらまで!
能代本社0185-54-6518
峰浜本店0185-76-3493
秋田支店018-896-7773
◎受付時間/10:00~17:00
◎メールでのお問い合わせはこちらから!

